- Sie haben noch keine Artikel in Ihrem Warenkorb.
Startseite » Steuerungen » Bedrahtete / kabelgebundene Steuerungen » WAREMA BAline LONMCM » WAREMA BAline MIO Sensor Adapter #2035357
WAREMA BAline MIO Sensor Adapter #2035357
NEU
WAREMA BAline MIO Sensor Adapter
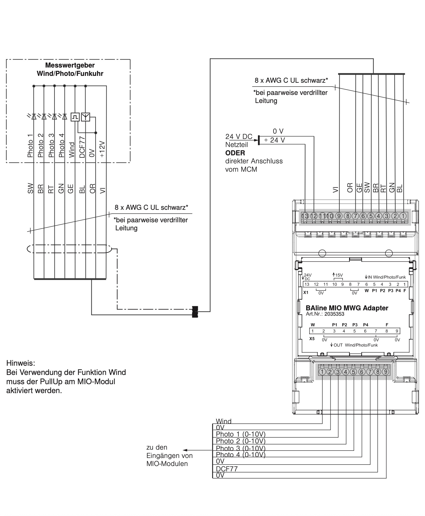
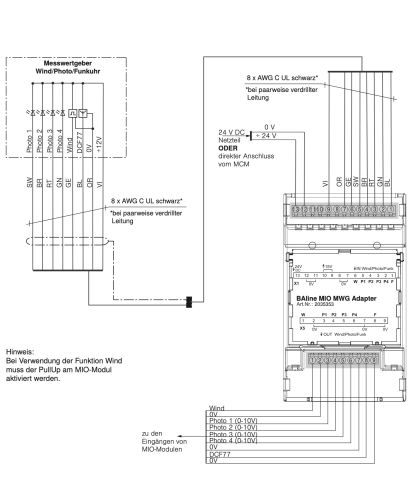
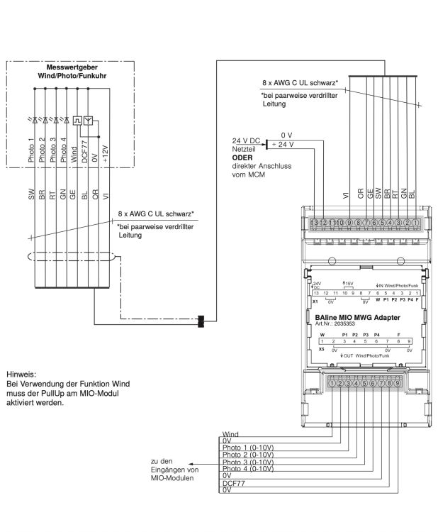
Der WAREMA BAline MIO Sensor Adapter ist ein praktisches Signal-Konvertierungsmodul, das aktive Messsignale von passiven Temperatursensoren in standardisierte analoge 0–10 V-Signale umwandelt und so für die Eingänge eines BAline-Automationssystems nutzbar macht. Damit entfällt die sonst nötige externe Beschaltung der Eingänge an den BAline MIO-Modulen: Der Adapter bereitet die Rohsignale direkt so auf, dass sie von Universaleingängen ausgewertet werden können. WAREMA GROUP
Das Modul eignet sich insbesondere für Installationen, bei denen Temperatursensoren oder ähnliche passive Sensoren genutzt werden sollen, deren Ausgangsspannung nicht direkt kompatibel ist. Durch die Konfiguration per Kodierschalter lässt sich der Adapter an unterschiedliche Sensortypen anpassen – für maximale Flexibilität in der Gebäudeautomation.
Produktvorteile
- Konvertiert passive Sensor-Signale (Temperatur) in 0–10 V-Analogsignale.
- Zwei Sensoreingänge über 4–20 mA-Klemmstellen zur direkten Messwertaufnahme.
- Kodierschalter zur Anpassung an verschiedene Sensortypen.
- Ermöglicht den direkten Anschluss an BAline-Universaleingänge ohne zusätzliche Verdrahtung.
- Reiheneinbau (REG) für Schaltschrankmontage.
- Ideal zur Integration von Temperatur- oder anderen passiven Sensoren in BAline-Systemen.
| Merkmal | Details |
|---|---|
| Artikelnummer | 2035357 |
| Funktion | Sensor-Signal-Adapter – passive Sensoren → 0–10 V |
| Eingänge | 2 × passive Sensoreingänge (4–20 mA) |
| Ausgang | 0–10 V Analogsignal zur Weitergabe an BAline-Universaleingang |
| Betriebsspannung | 24 V DC |
| Anschlussart | Schraubklemmen |
| Montageart | Reiheneinbau (REG) |
| Schutzart | IP 20 |
| Schutzklasse | II |
| Baugruppenbreite | 4 TE |
-
BAline MIO Sensor Adapter (2035357)
-
Kodierschalter zur Sensorkonfiguration
-
Anschluss- und Montageanleitung
WAREMA Renkhoff SE
Hans-Wilhelm-Renkhoff-Straße 2
97828 Marktheidenfeld
E-Mail: info@warema.de
Tel.: +49 9391 200
Hans-Wilhelm-Renkhoff-Straße 2
97828 Marktheidenfeld
E-Mail: info@warema.de
Tel.: +49 9391 200
Leider sind noch keine Bewertungen vorhanden. Seien Sie der Erste, der das Produkt bewertet.
Für weitere Informationen besuchen Sie bitte die Homepage zu diesem Artikel.






